【 一戸建て 】新築 ◆敷地約39坪◆LDK19帖以上◆全居室6帖以上◆WIC付
| 最寄駅 | 所在地 | 面積 | 築年月 | 価格 | 間取り |
|---|---|---|---|---|---|
近鉄南大阪線 藤井寺駅 徒歩 16分 | 羽曳野市誉田5丁目 | 土地/130.40㎡ 建物/98.40㎡ | 2025年09月 | 2,480万円 | 3 LDK |
★彡お客様還元キャンペーン実施中★彡
【仲介手数料0円キャンペーン実施中】
当社でご契約頂いたお客様に、もれなく仲介手数料0円か、
仲介手数料相当分の現金キャッシュバックか、どちらかを
選んで頂くことができます。
よくあるご質問】
Q…どうして仲介手数料を無料にできるのですか?
A…売主である分譲会社からのみ仲介手数料をいただいて、
買主(個人)の仲介手数料を無料で運営しております。
Q…仲介手数料が無料ということは、他の不動産会社に比べてサービスが劣るのでしょうか
A…他の不動産会社以上の仕事をいたします。
ご自身にあった金融機関選びから住宅ローンのプラン・返済プランもご提案しています。
◆◇◆不動産会社ホームページやSUUMO、HOME’S、athome、ポストに入っていたチラシ、
他社での紹介、気になる物件があれば是非ご連絡ください。 キャッシュバック対象の物件かお調べします。
問い合わせは非常にシンプル。物件情報をLINEで送るだけ◆◇◆
◆◇◆LINEでのキャッシュバック対象物件かお調べするお問い合わせ方法◆◇◆LINEアカウント @xgw4998y◆◇◆
不動産会社ホームページやSUUMO、HOME’S、athome、ポストに入っていたチラシ、他社での紹介、気になる物件があれば是非ご連絡ください。
キャッシュバック対象の物件かお調べします。
問い合わせは非常にシンプル。物件情報をLINEで送るだけ。
《お知らせ》
◆当社以外の「不動産ポータルサイト」「チラシ」「他社での紹介」で気になる物件を見つけた場合はお気軽にご連絡下さい。ほとんどがキャンペーンの対象になります。
◆住宅ローンに最高500万円までプラスできます
住宅ローンを利用する際に、ご返済中の自動車・カードローンなどを、
最高500万円まで合算(一本化)してご利用いただけます。
*新居でご利用される家具・カーテン・家電等の家財購入費用も合算することができます。
◆ホームページに掲載されていない物件も多数ございますので
地域密着の担当スタッフに何でもご相談ください。
◆弊社の営業スタッフは住宅ローンアドバイザー及び住宅建築コーディネーターの有資格者ですのでご安心ください。
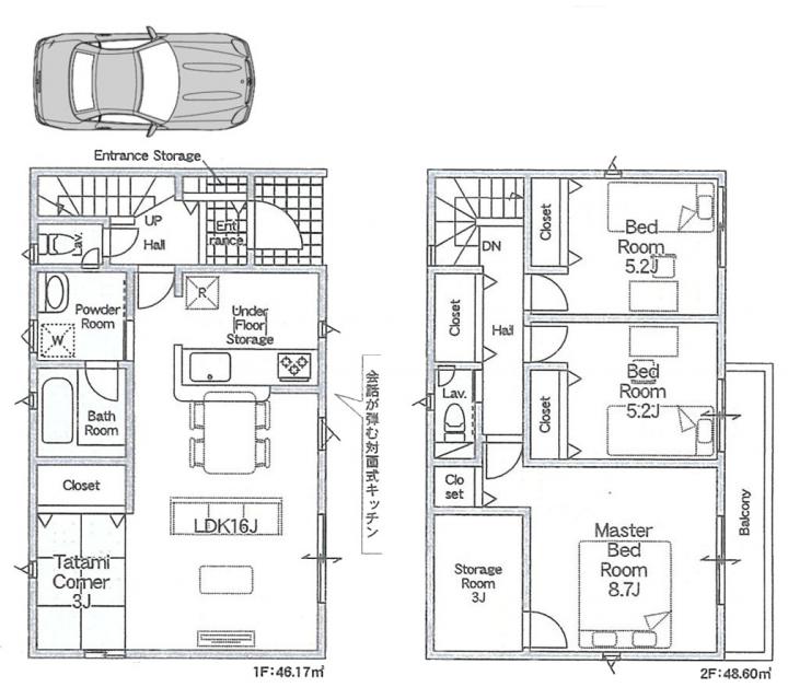
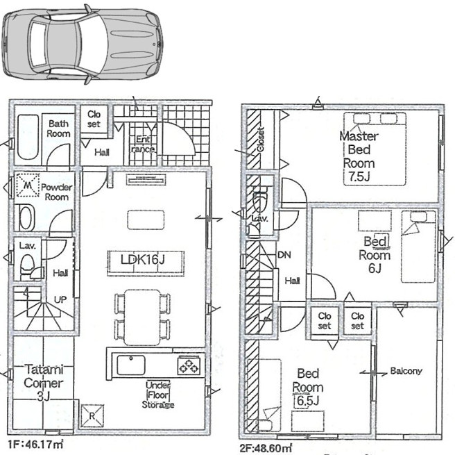
物件写真・間取り
物件概要
| 物件名 | 羽曳野市 誉田 |
|---|
| 交通機関 | 近鉄南大阪線 藤井寺駅 徒歩 16分 |
|---|
| 所在地 | 羽曳野市誉田5丁目 |
|---|
| 価格 | 2,480万円 |
|---|
| 間取り | 3 LDK |
|---|
| 小学校区 | 古市小学校 |
|---|
| 中学校区 | 誉田中学校 |
|---|
| 土地権利 | 所有権 |
|---|
| 建築確認番号 | 第R07SHC107394号 |
|---|
| 土地面積 | 130.40㎡ |
|---|
| 建物面積 | 98.40㎡ |
|---|
| 建物構造 | 木造 |
|---|
| 階 / 階数 | 2 |
|---|
| 築年月 | 2025年09月 |
|---|
| 都市計画 | 市街化区域 |
|---|
| 用途地域 | 第一種中高層住居専用地域 |
|---|
| 建ぺい率 | 60% |
|---|
| 容積率 | 200% |
|---|
| 地目 | 宅地 |
|---|
| 現況 | 完成済 |
|---|
| 販売戸数 | 5 |
|---|
| 引渡し | 即時 |
|---|
| 取引態様 | 媒介 |
|---|





























